这位老哥把70㎡三居爆改成二居,事实证明拆的很妙!
发布时间:2017-06-06 来源:泰州装饰招标网
许多改造的案例都是千篇一律的少改多,
把两居变三居,三室变四室,
这次有人却反其道而行,
好好三居室,非得拆成两居,
不禁大呼“这人疯了吧……”
不过看完拆改后的效果,你就明白了!

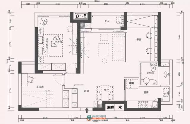
户型虽小,但是很多地方可以改造的,套内70多平方米的房型分割出了三个卧室的空间,使得整个空间看起来很拥挤不通透,采光不是很好,厨房以及卫生间的空间也难以满足业主的生活需求。

拆除了客厅与书房之间的墙体,做成半开放式的书房。拆除阳台的墙体做了一组收纳柜,增加阳台的面积与使用功能。

入户做了一组带有坐榻的鞋柜,功能齐全,在入户的右手边做了两组抽拉式储物柜,小小的空间,却成为了收纳专家,利用每一寸空间把家做井井有条。

先给大家看几张施工图,在装修的时候特意拍的,就等完工之后来给大家做对比了。客厅与书房之间墙体改造过程,客厅与书房之间的墙体是240的墙体,拆除后利用木作做成厚度只有10cm的隔墙, 高度做到1.2米作为沙发靠背与两个空间的隔断。

这种隔断建议基础用木作,这样比较节省空间,还有饰面可以用涂装木皮,这样会比较环保而且耐划耐磕碰,而且收边也会比较漂亮。当然如果风格和要求更高点,饰面也可以用石材的。

改造后的效果果然更好,拆除了客厅与书房之间的墙体,做成的半高隔墙与原承重梁用木饰面包裹起来,在空间上得到了视觉上的延伸,两个空间的光源相互通融交汇,使得两个空间既有独立功能,又相互连通。

客厅中延续北欧风格,去除多余的装饰,每一件家具,每一处软装都可以带来色彩,木纹砖的地面,跳色的茶几与抱枕,布艺的沙发和窗帘盒暗藏灯带的设计表现出欢快、简洁的北欧客厅。

小户型的客餐厅视觉需要更为开阔,动线流畅,色彩、材质元素融入整个家居空间,更加具有整体感。

客厅望向餐厅的方向,可看到整个小天地,用文艺白与原木色作为空间主导,以蓝、黄为空间调色,清爽简洁又颇有质感。坐在这样一款的微笑椅上与家人淡笑,或者读书看报,好不惬意。

利用设备平台的空间将厨房扩大,满足了主人烹饪时对操作台面的需求,同时铺贴白色的墙砖使得空间更为明亮。


主卧以浅色、原木色为主调,再以透过大面积的窗户的自然光为点缀,精致个性的小壁灯给空间带来了活泼感。蓝色的床品与窗帘相呼应,让空间更具清新活力。床头小景,别致的小灯,素雅清新的花瓶,恰如其分的点缀空间。

原始结构这个户型有三个房间,由于常驻人口比较少,暂时就是一对小夫妻,想把这个房间做成书房,但又希望这个书房不是封闭的,希望是开始开放的,通透的。

希望有个大的飘窗可以卧着听听音乐看看外面的风景,把原始飘窗深度60CM的尺寸做了延伸,做了一个卧榻出来,而且这个卧榻又兼具实用收纳功能。拆除栏杆,以飘窗的高度齐平外扩40cm侧面,总共变成了一米的尺寸。

书房的飘窗台做了延伸,美观与实用性并存。简易的置物架上搁上一盆小绿萝,将室内外的气息很好的衔接起来。书房往向餐厅方向,动线流畅,又互不干扰。

阳台黑色边框玻璃格子推拉门,不仅使阳台看起来通透,而且增加了客厅的采光与通风。利用厚墙与推拉门之间凹进去的空间,做了一组收纳柜,小小阳台,干净欢快,暗藏收纳。
